☰
Giornale di Monza
Si torna in campo il 19
Vero Volley Monza conquista Padova con autorità
Il grande tennis a Monza
Sinner protagonista a Monza con Royal Tennis Art: una mostra all’aperto
Torneo in corso a Monza
Atkinsons Monza Open: i favoriti avanzano senza difficoltà
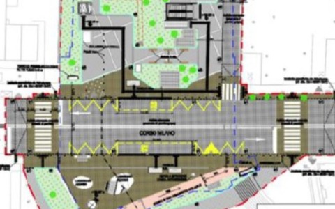
Urbanistica
Il PGT di Monza verso l’approvazione finale: tempistiche e dettagli della variante
Seduta pubblica rinviata
Pedemontana, i commissari ottengono un nuovo orario per la seduta pubblica
Intervento urgente
Intossicazione da spray al peperoncino in un istituto di Monza
Cadute in aumento
Cittadini in difficoltà per marciapiedi danneggiati a Monza
Arrestato pusher a Monza
Arresto di un pusher: ossicodone, hashish e denaro contante sequestrati
Colpo al centro accoglienza
Furto al centro di accoglienza: derubati senza fissa dimora
Controlli straordinari
Interventi congiunti della Polizia di Stato e Locale a Monza
Ginnastica
Esordio positivo per GAL Lissone nel Campionato Gold Star Allieve
Tennis in evoluzione
Monza Open: Collignon in forma smagliante, l’Italia brilla in campo
Pet therapy al centro
Pet Therapy al Centro Maria Letizia Verga: Un supporto per i piccoli pazienti
Crisi in corso
La situazione in Medio Oriente induce le aziende a utilizzare la Cassa integrazione
Furto cantiere
Furto in cantiere scolastico: recuperati attrezzi per 5mila euro
Un furto inaccettabile
Furto a Marco di PizzAut: grazie ai Carabinieri la situazione si risolve
Tristezza
Lutto per la scomparsa di Mario Colombo, storico presidente di Colmar
Tennis
Bellucci e Travaglia brillano all’Atkinsons Monza Open
Trasporti
Nuovo piano dei trasporti: bus ogni 15 minuti e più corse serali
Inizio promettente
Van Son Didoni, debutto affascinante al Challenger di Monza